空き家情報

(登録番号:400)
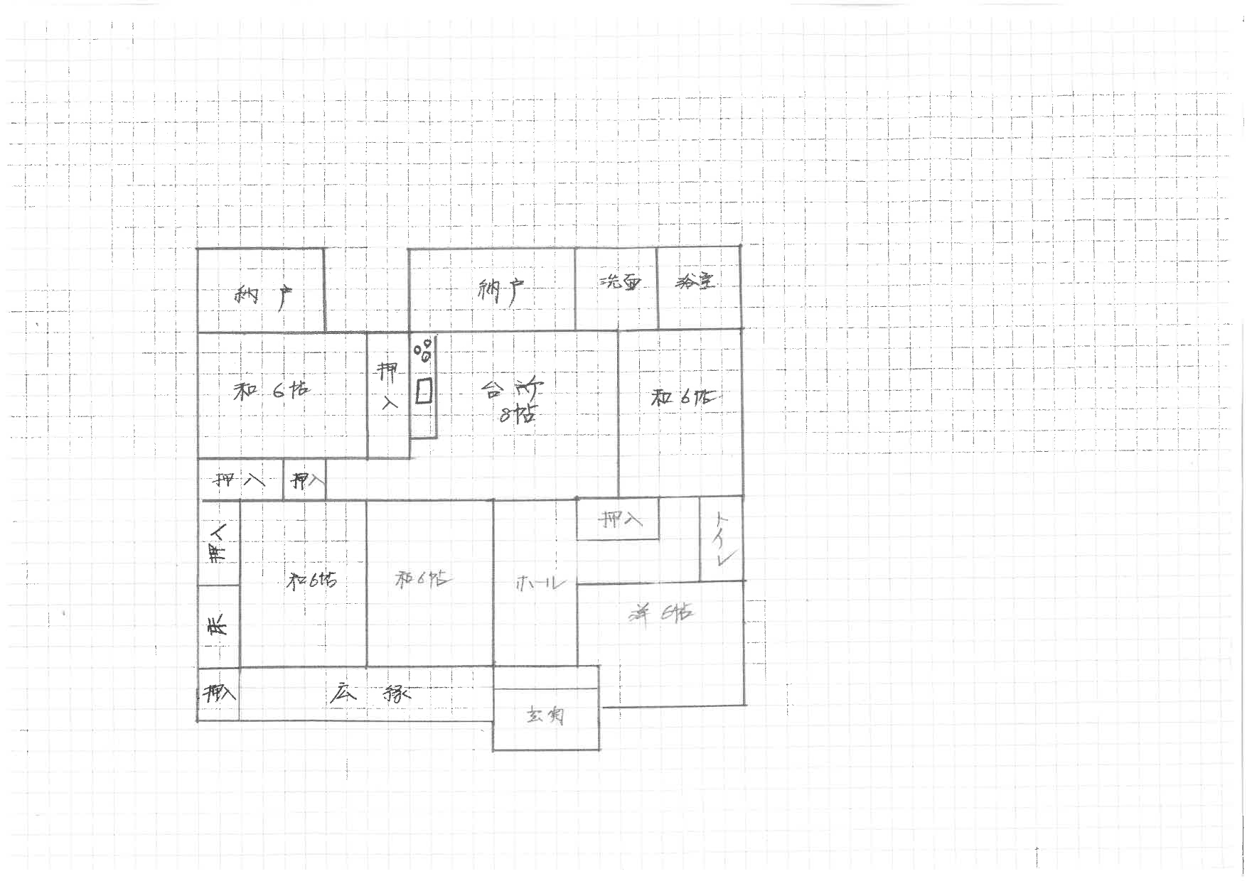
詳細情報
| 所在地 | 美祢市美東町絵堂 |
|---|---|
| 構造 | 木造 |
| 宅地面積 | 534㎡ |
| 延床面積 | 116.15㎡ |
| 間取り | https://sundemine.jp/wp/wp-content/uploads/2025/11/03a1a75549f5a48a6e1803f3a23c9ad9.jpg |
| 建築時期 | 平成6年 |
| 駐車場 | 5台 |
| 飲用水 | 井戸水等 |
| キッチン | ガス |
| バス | 電気 |
| トイレ | 水洗(浄化槽) |
| 空家になった時期 | 令和元年 |
| 家賃 | ー |
| 売却価格 | 4,800,000円 |
| ペットの飼育 | 良い |
| 畑 | 175㎡ |
| 田 | 2,162.84㎡ |
| 付帯施設 | 倉庫、山林 |
| 付帯施設の条件 | ― |
| 要望事項 | ― |
| 土地にかかる利用制限の有無 | 無 |
| 仲介不動産業者 | (株)ライフサポート |
| 詳細が知りたい方は、まずは利用希望者登録を☞ | https://sundemine.jp/housing-information-old/akiya_gaiyou/ |
お問い合わせ
- 美祢市 総務企画部 地域振興課
- 電話番号:0837-52-1128
FAX番号:0837-53-1959
メールアドレス:chiikishinkou@city.mine.lg.jp









