空き家情報

(登録番号:404 )
詳細情報
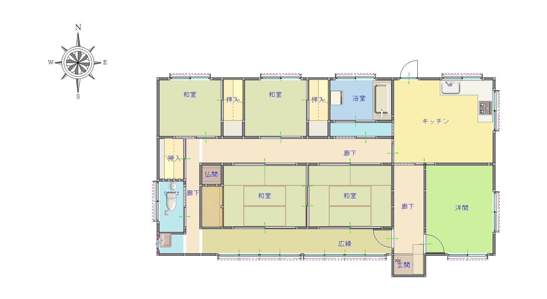
| 所在地 | 美祢市大嶺町東分 |
|---|---|
| 構造 | 木造瓦葺平屋建 |
| 宅地面積 | 381.41㎡ |
| 延床面積 | 125.67㎡(38坪) |
| 間取り | https://sundemine.jp/wp/wp-content/uploads/2025/11/ab4adb6454f0a9482e8e75e16d2c883e.jpg |
| 建築時期 | 昭和51年10月 |
| 駐車場 | 2台 |
| 飲用水 | 水道水 |
| キッチン | 電気 |
| バス | 電気 |
| トイレ | 水洗 洋式 |
| 空家になった時期 | 令和7年11月 |
| 家賃 | - |
| 売却価格 | 3,000,000円 |
| ペットの飼育 | ー |
| 畑 | ー |
| 田 | ー |
| 付帯施設 | ー |
| 付帯施設の条件 | ー |
| 要望事項 | ー |
| 土地にかかる利用制限の有無 | 無 |
| 仲介不動産業者 | 髙山産業株式会社 |
| 詳細が知りたい方は、まずは利用希望者登録を☞ | https://sundemine.jp/housing-information-old/akiya_gaiyou/ |
お問い合わせ
- 美祢市 総務企画部 地域振興課
- 電話番号:0837-52-1128
FAX番号:0837-53-1959
メールアドレス:chiikishinkou@city.mine.lg.jp








